优势
该型号
性价比合理
这款揭盖式洗碗机采用清洁技术,价格实惠。享受 UPster® 的特殊优势:快速订购和交付流程、多种安装选项、坚固耐用的材料并易于操作。设备使用寿命长,易于操作。
UPster H 500 M1
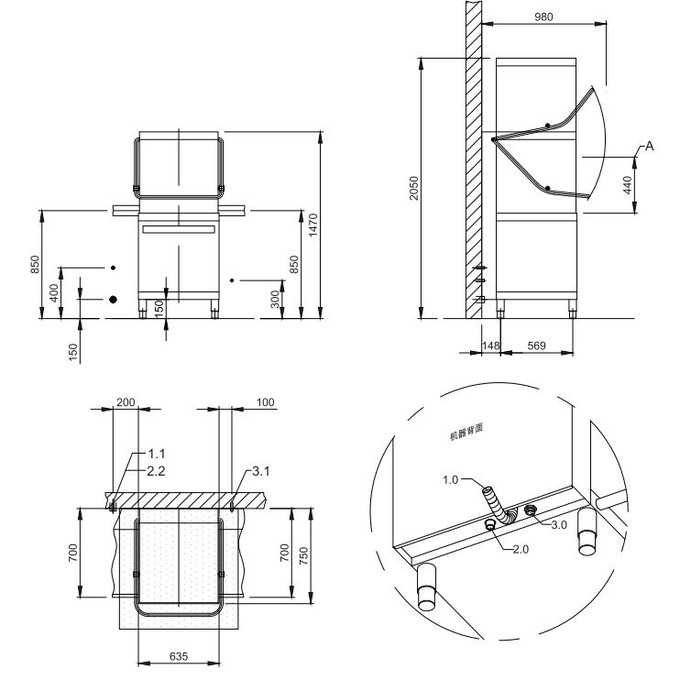
UPster ® H 500 M1:更强力且十分便利的传递技术。此款传递式洗碗机以起步价格提供持续动力和洗涤便利。打开洗碗机罩盖时不会产生蒸汽团,同时具备便捷的自动启动功能。借助 440 mm 的传递高度,UPster H 500 M1 成为大盘子、餐盘和托盘等高件洗涤用具的理想选择。
| 篮筐大小 | 500 x 500 mm (540 x 50 mm |
| 通过高度 | 440 mm |
| 尺寸 | 635 ( 687) x 1470 x 750 (850) mm (mit Haubenbüge mm |
| 程序运行时间 | 60 / 90 / 210 s |
| 篮筐洗涤速度/h(理论上) | 60 / 40 / 17 筐/小时 |
| 水箱注水量 | 22,0 l |
| 冲洗水量 | 3 升/洗涤循环 |
| 总设备功率 | 12,9 kW |
| 现场提供保险丝保护 | 32 A |
| 漂洗水量加热方式器 | 12.00 kW / 17.32 A |
| 水箱加热方式功率 | 2.00 kW / 8.70 A |
| 清洗泵 | 0.75 kW / 4.80 A |
| 机器防护等级 | IP X4 |
有关详细的产品信息,请联系您的销售合作伙伴。
产品线和版本种类繁多,因各国的法律规定不同,各地区的产品系列和版本也因此不太相同。请向当地合作商了解具体事宜。他们会帮助您找到一款最适合您的设备。
版本日期:2018 年 3 月。保留技术更改权利。





























































